Page suivante
Page précédente
Tremblay-en-France (93290)

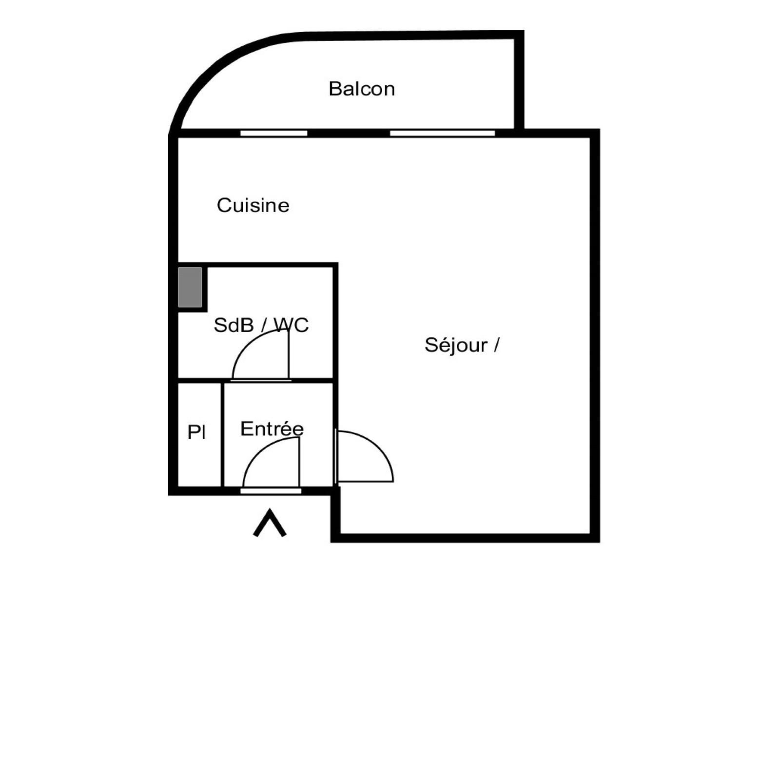
Appartement 1 pièce(s) 31.07 m²

1
Balcon
1
Réf 326

À la recherche d'un studio confortable et bien situé à Tremblay ? Ne cherchez plus ! Ce charmant studio de 31 m² loi Carrez . Situé au deuxième étage sans ascenseur dans la résidence verdoyante et sécurisée SHERWOOD, je vous invite à découvrir cet appartement qui offre un espace de vie lumineux et fonctionnel dès son entrée avec son placard de rangement intégré, suivi de sa pièce de vie lumineuse et sa cuisine équipée, sa salle de bain. Vous apprécierez son beau balcon sans vis-à-vis, idéal pour profiter des journées ensoleillées. De plus, bénéficiez d'une place de stationnement en souterrain, offrant sécurité et commodité. Idéal premier achat ou investisseur. Appartement actuellement loué au montant de 750€ par mois (charges incluses).

Emplacement : Situé à proximité de toutes les commodités, ce studio est idéalement placé. Vous trouverez des commerces, des transports en commun et des espaces verts à quelques pas de chez vous.

Ce bien vous est proposé au prix de 110 000€ (honoraires charge vendeur). Numéro de dossier 326. Montant des charges de copropriété annuelle est de 1155€. Pas de procédure en cours, 1 lot principal. Classement énergétique : classement climat D/213 et classe confort A/6, montant annuelle des dépenses énergétiques entre 1800€ et 2470€. Pour toutes demandes de visites, merci de contacter Mélanie au 07.82.63.52.95 ou à l'agence au 01.83.93.60.50





Les informations sur les risques auxquels ce bien est exposé sont disponibles sur le site Géorisques

Bilan énergétique

Diagnostics énergetiques
Consommation énergétique
A B C D E F G
Emission de gaz à effet de serre
A B C D E F G

Montant estimé des dépenses annuelles d'énergie de ce logement pour un usage standard est compris entre 450 € et 660 € . 2021 étant l'année de référence des prix de l'énergie utilisés pour établir cette estimation.

A propos de ce bien Caractéristiques de ce bien
  • Surface 31,07 m²
  • carrez 31,07 m²
  • séjour 24,40 m²
  • 1 salle(s) de bain
  • construit en 1992
  • cuisine américaine (équipée)
  • Chauffage individuel : radiateur (electrique)
  • exposition Est
  • 2ème étage
  • 3 étage(s)
  • balcon
  • interphone

Composition

Composition de ce bien

Rez-de-chaussée

  • entrée 3.38 m²
  • Sejour Cuisine 24.40 m²
  • salle de bain 3.29 m²
  • balcon 5.62 m²

Financier

Informations financières
Charges 73 €
Taxe foncière annuelle 814 €

Autour du bien

Découvrez le quartier

Simulation

Calcul des mensualités
* Champs obligatoires
Melanie ALLAMELOU Négociatrice